HARUMI FLAG SKY DUO SUN VILLAGE T棟
HARUMI FLAG SKY DUO SUN VILLAGE T棟
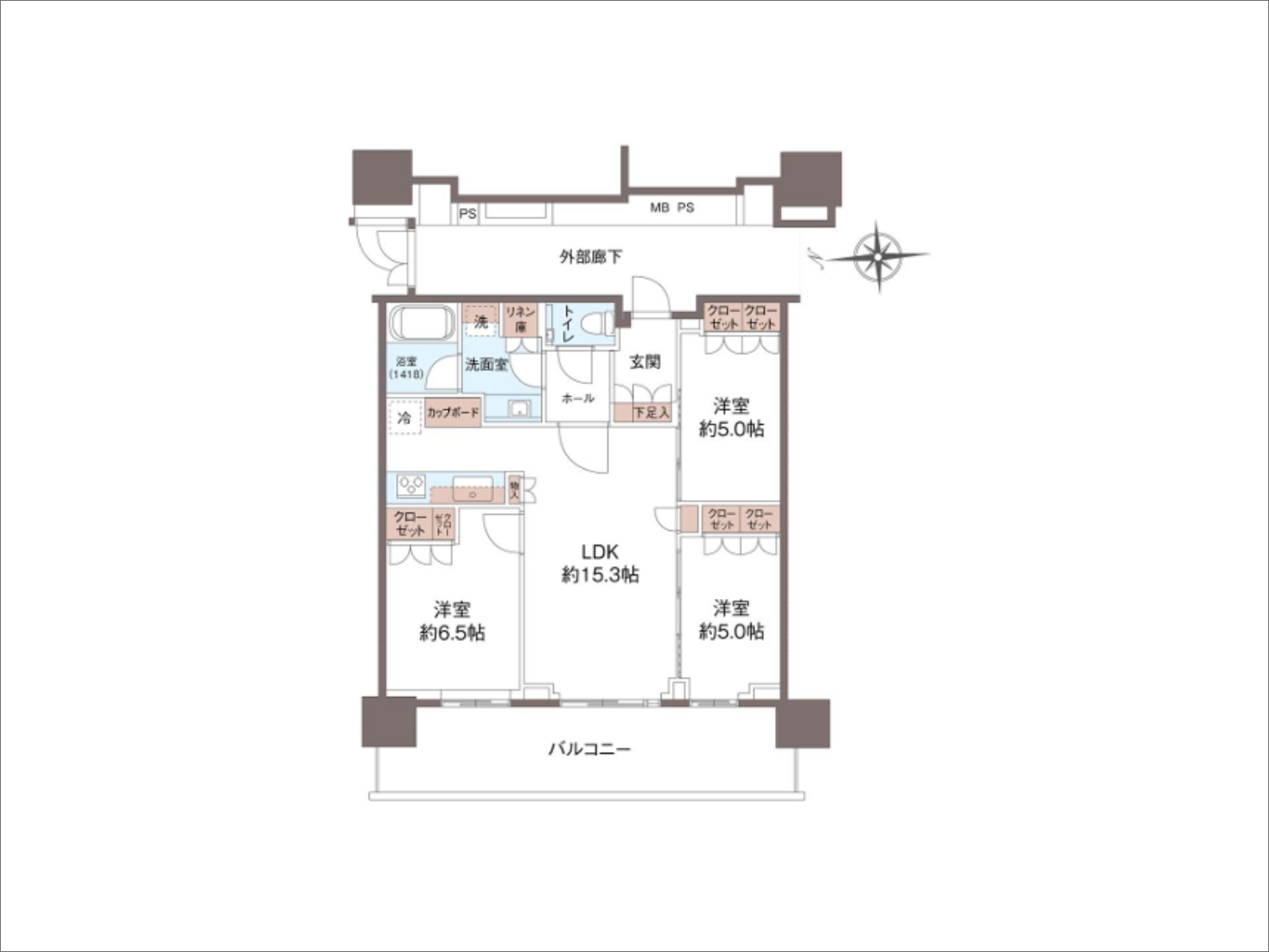
3LDK / 70.34㎡ / 22,980万円
- 物件概要
- インフォメーション
- 物件周辺MAP
| 種目 | 新築マンション | ||
|---|---|---|---|
| マンション名 | HARUMI FLAG SKY DUO SUN VILLAGE T棟 | ||
| 間取 | 3LDK | ||
| 価格 | 22,980万円 | ||
| 所在地 | 東京都中央区晴海5-5-47 | ||
| 交通 | 大江戸線「勝どき」18分 ゆりかもめ「市場前」20分 | ||
| 構造・規模 | RC造50階建て39階部分 | ||
| 専有面積 | 70.34㎡ | バルコニー面積 | 17.02㎡ |
| ポーチ面積 | - | 庭面積 | - |
| 土地権利 | 所有権 | 用途地域 | 商業地域 |
| 築年月 | 2025年(令和7年)10月 | 総戸数 | 722戸 |
| 管理形態 | 全部委託管理 | 管理方式 | 巡回 |
| 管理費 | 月額27,150円 | 修繕積立金 | 月額13,710円 |
| 駐車場 | 要確認(抽選) | 駐輪場 | 要確認 |
| 現状 | 空室 | 引き渡し日 | 相談 |
| 本体設備 | ・都市ガス・オートロック・宅配ボックス | ||
| 施工会社 | 三井住友建設株式会社 | ||
| 管理会社 | 三井不動産レジデンシャルサービス株式会社 | ||
| 備考 | 【その他費用内訳】 ペット可(細則有り) インターネット料金:2,750円 HARUMI FLAG CLUB会費:500円 自治会費:100円 | ||
共用施設
- コミュニティルーム
- コドモプラザ
- スカイラウンジ
- スポーツバー
- シアタールーム
- カフェラウンジ
- ワークラボ
- クラフトルーム
- タバコスポット
マンション名
HARUMI FLAG SKY DUO
SUN VILLAGE T棟
販売価格
22,980万円
所在地
東京都中央区晴海5-5-47
交通
大江戸線「勝どき」18分
ゆりかもめ「市場前」20分
間取り / 専有面積 / 所在階
3LDK / 70.34㎡ / 39階
電話でのお問い合わせ


